Bilocale in vendita

Ciserano, Via Boltiere
€ 119.900
2 locali 2 locali
106 Mq 106 Mq
1 bagno 1 bagno

Bilocale in vendita

Ciserano, Via Boltiere

Descrizione annuncio

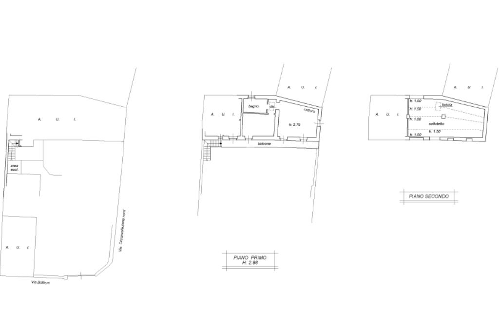
Nel comune di Ciserano, proponiamo un bilocale al piano primo, oggetto di una ristrutturazione nel 2025. L'immobile offre spazi ben distribuiti e funzionali.

All'ingresso, si viene accolti da un luminoso soggiorno con cucina a vista, ideale per momenti di convivialità.

La zona notte comprende una camera da letto con accesso diretto al balcone, perfetto per godere di momenti di relax all'aperto. Il bagno finestrato è dotato di una comoda doccia. Un ulteriore punto di forza è l'area esterna privata, che offre uno spazio verde esclusivo. Completa la proprietà un posto auto privato, garantendo comodità e sicurezza, e un sottotetto.

L'appartamento si trova in una zona tranquilla e ben servita, rappresentando una soluzione abitativa ideale per chi cerca comfort e praticità.

Il gruppo Tecnocasa offre consulenza riguardo tutte le fasi della compravendita e valutazioni gratuite del proprio immobile.

Inoltre la collaborazione con il gruppo Kiron ci consente di fornirvi consulenza a titolo gratuito ed informativo per l'erogazione dei mutui bancari.

Mostra tutto

Nelle vicinanze

Trasporto pubblico Trasporto pubblico
Arcene
Arcene
1,4 Km
Verdello Dalmine
Verdello Dalmine
2,7 Km
Trasporto pubblico
370 m
Osio Sotto - Centro interscambio TBSO
Osio Sotto - Centro interscambio TBSO
2,5 Km
Ricariche auto elettriche Ricariche auto elettriche
Concessionario Nissan Arricar Srl
1,5 Km
LIDL Rio Isolo
2,2 Km
Scuole Scuole
Scuola Secondaria Sandro Pertini
310 m
Scuole
390 m
Istituto comprensivo di Verdellino
1,8 Km
Farmacia Farmacia
Farmacia
340 m
Ospedali Ospedali
Istituto di Neuroriabilitazione ad Alta Complessità Habilita
640 m
Policlinico San Marco
2,0 Km
Supermercati Supermercati
La Coccinella
250 m
Famila
770 m
In's
1,7 Km
Lidl
2,3 Km
Conad
2,4 Km
Negozi Negozi
Mini Market
50 m
Negozi
390 m
Minimarket Chiara
2,4 Km
Bar Bar
Bar
50 m
Barticolare
1,8 Km
Bogni
1,8 Km
On the Road
2,3 Km
Chiosco
2,6 Km
Ristoranti Ristoranti
Trattoria Degli Amici
120 m
Sant'Orsola Pizzeria Trattoria
230 m
Ristoranti
370 m
Churahi
900 m
Ristorante al Cantinone
2,0 Km
Mostra tutto

Caratteristiche

Rif.:
61196541
Piano:
1 di 2 (Piano medio)
Posti auto:
1
Balconi:
1
Camere da letto:
1
Arredamento:
Assente
Mostra tutto
Prezzo Prezzo
€ 119.900
Rata mutuo Rata mutuo
€ 565 / mese
Spese annue Spese annue
€ 0
Proponi il tuo prezzoProponi il tuo prezzo
Immobile valutato con T·Valuta

Classe Energetica

D
D
D
D
D
D
D
D
D
Anno di costruzione:
1967
Riscaldamento:
Autonomo
Tipo impianto:
A pavimento
Tipo alimentazione:
Aria

Ti interessa visionare l'immobile?

Fissa un appuntamento  Fissa un appuntamento

Richiedi informazioni

Clicca su Leggi per aprire l'informativa
* Questi campi sono obbligatori

Calcola il tuo mutuo

Semplice e senza impegno
Anticipo

( % )
Mutuo

( % )

pochi semplici passi

inserisci i tuoi dati
Questionario completato
Grazie per aver richiesto un appuntamento senza impegno con un nostro Consulente del Credito e Assicurativo.

Hai inserito correttamente tutti i dati necessari e a breve riceverai una e-mail con un link da convalidare per inviare i tuoi dati.
Affiliato
Tecnoboltiere Srl
Via IV Novembre, 11 24040 Boltiere (BG)

Il nostro staff


  • Veronica Pizzardi
    Collaboratrice

  • Edoardo Rigamonti
    Affiliato

  • Gaia Stampa
    Collaboratrice
Via IV Novembre, 11 24040 Boltiere (BG)
Zona: Boltiere
Mostra su mappa
Affiliato
Tecnoboltiere Srl
Via IV Novembre, 11 24040 Boltiere (BG)

2026 Tecnocasa Franchising S.p.A. - P. IVA 08365160152 - Via Monte Bianco 60/A 20089 Rozzano (MI). Ogni agenzia ha un proprio titolare ed è autonoma. Privacy policy | Policy utilizzo | Cookie policy