Bilocale in vendita

Ciserano, Via Arcene
€ 159.000
2 locali 2 locali
70 Mq 70 Mq
1 bagno 1 bagno

Bilocale in vendita

Ciserano, Via Arcene

Descrizione annuncio

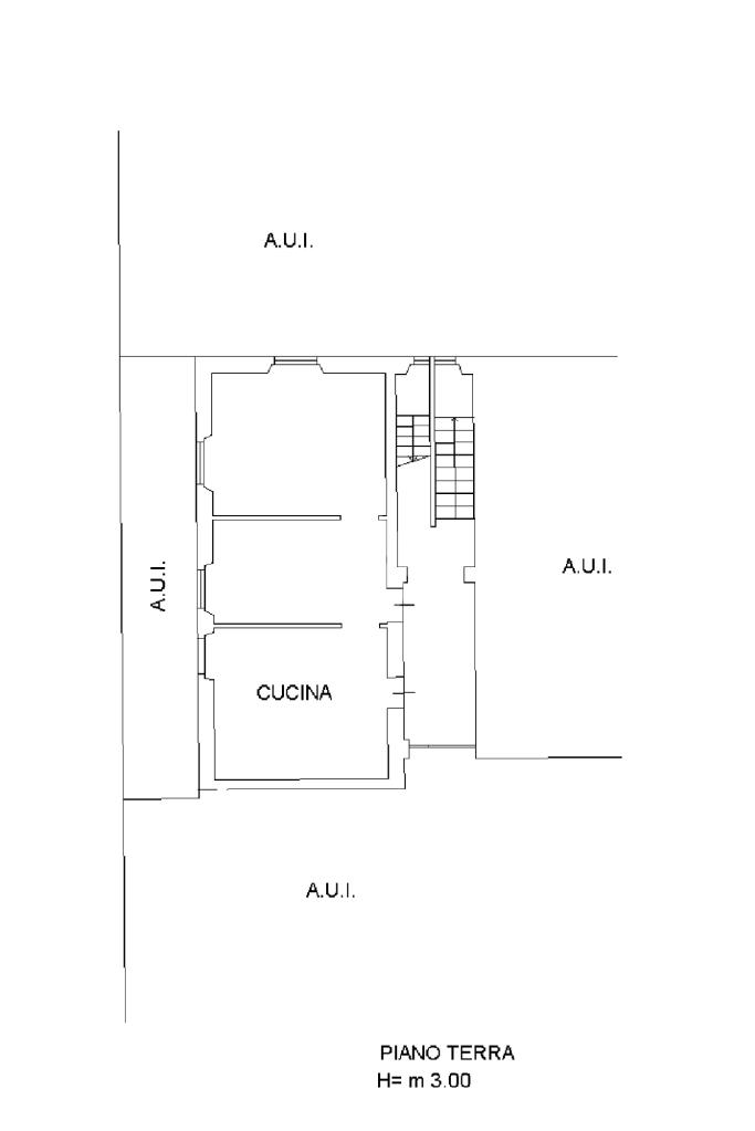
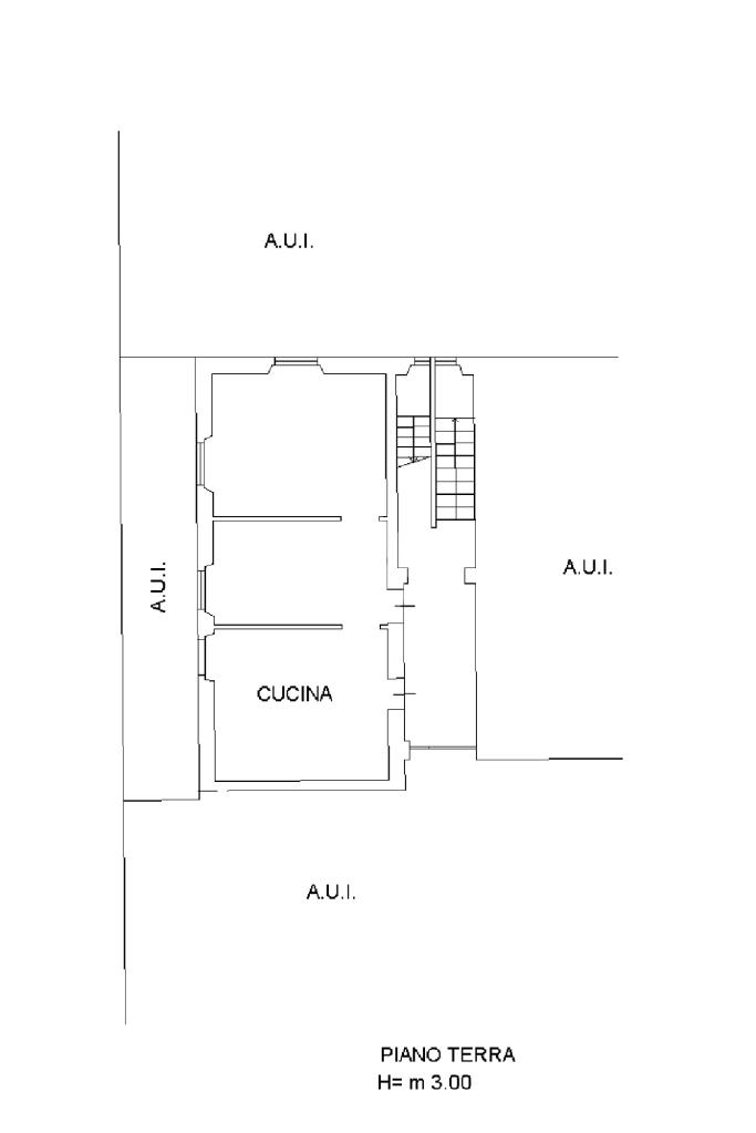
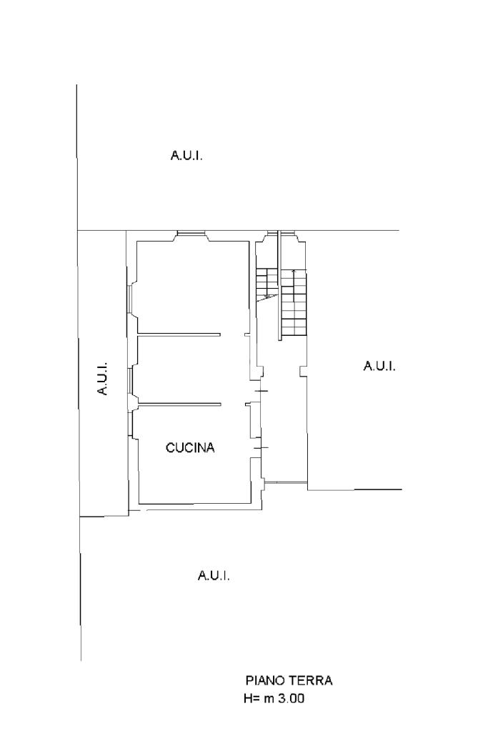
Nel comune di Ciserano, proponiamo un appartamento bilocale in fase di ristrutturazione COMPLETA, situato al piano terra.

L'immobile, di 70 mq, offre un ingresso che conduce direttamente alla zona giorno, dove la cucina a vista si integra armoniosamente con lo spazio living. Da qui, si accede al giardino privato di 150 mq, ideale per momenti di relax all'aperto.

La zona notte è composta da una spaziosa camera da letto matrimoniale e un bagno finestrato box doccia.

Questa soluzione abitativa rappresenta un'opportunità per chi cerca un ambiente accogliente e personalizzabile, con il valore aggiunto di un ampio spazio esterno.

Il gruppo Tecnocasa offre consulenza riguardo tutte le fasi della compravendita e valutazioni gratuite del proprio immobile.

Inoltre la collaborazione con il gruppo Kiron ci consente di fornirvi consulenza a titolo gratuito ed informativo per l'erogazione dei mutui bancari.

Mostra tutto

Nelle vicinanze

Trasporto pubblico Trasporto pubblico
Arcene
Arcene
1,1 Km
Verdello Dalmine
Verdello Dalmine
2,6 Km
Trasporto pubblico
50 m
Osio Sotto - Centro interscambio TBSO
Osio Sotto - Centro interscambio TBSO
2,8 Km
Ricariche auto elettriche Ricariche auto elettriche
Concessionario Nissan Arricar Srl
1,2 Km
LIDL Rio Isolo
2,6 Km
Scuole Scuole
Scuole
150 m
Scuola Secondaria Sandro Pertini
300 m
Istituto comprensivo di Verdellino
1,8 Km
Farmacia Farmacia
Farmacia
80 m
Ospedali Ospedali
Istituto di Neuroriabilitazione ad Alta Complessità Habilita
560 m
Policlinico San Marco
2,3 Km
Supermercati Supermercati
Famila
630 m
La Coccinella
680 m
In's
1,4 Km
Lidl
2,7 Km
Conad
2,7 Km
Negozi Negozi
Negozi
60 m
Mini Market
400 m
Minimarket Chiara
2,4 Km
Bar Bar
Bar
380 m
Barticolare
1,4 Km
Bogni
1,4 Km
On the Road
1,9 Km
Chiosco
2,8 Km
Ristoranti Ristoranti
Ristoranti
50 m
Trattoria Degli Amici
320 m
Sant'Orsola Pizzeria Trattoria
330 m
Churahi
1,0 Km
Trattoria della Cascina Bolsa
2,0 Km
Mostra tutto

Caratteristiche

Rif.:
61174474
Piano:
Terra con giardino di 3
Totale piani:
3
Camere da letto:
1
Arredamento:
Assente
Condizionamento:
Assente
Mostra tutto
Prezzo Prezzo
€ 159.000
Rata mutuo Rata mutuo
€ 755 / mese
Spese annue Spese annue
€ 0
Proponi il tuo prezzoProponi il tuo prezzo

Classe Energetica

G
G
G
G
G
G
G
G
G
Anno di costruzione:
1970
Riscaldamento:
Autonomo
Tipo impianto:
A radiatori
Tipo alimentazione:
Metano

Ti interessa visionare l'immobile?

Fissa un appuntamento  Fissa un appuntamento

Richiedi informazioni

Clicca su Leggi per aprire l'informativa
* Questi campi sono obbligatori

Calcola il tuo mutuo

Semplice e senza impegno
Anticipo

( % )
Mutuo

( % )

pochi semplici passi

inserisci i tuoi dati
Questionario completato
Grazie per aver richiesto un appuntamento senza impegno con un nostro Consulente del Credito e Assicurativo.

Hai inserito correttamente tutti i dati necessari e a breve riceverai una e-mail con un link da convalidare per inviare i tuoi dati.
Affiliato
Tecnoboltiere Srl
Via IV Novembre, 11 24040 Boltiere (BG)

Il nostro staff


  • Veronica Pizzardi
    Collaboratrice

  • Edoardo Rigamonti
    Affiliato

  • Gaia Stampa
    Collaboratrice
Via IV Novembre, 11 24040 Boltiere (BG)
Zona: Boltiere
Mostra su mappa
Affiliato
Tecnoboltiere Srl
Via IV Novembre, 11 24040 Boltiere (BG)

2026 Tecnocasa Franchising S.p.A. - P. IVA 08365160152 - Via Monte Bianco 60/A 20089 Rozzano (MI). Ogni agenzia ha un proprio titolare ed è autonoma. Privacy policy | Policy utilizzo | Cookie policy