Trilocale in vendita

Boltiere, Piazza Marconi
€ 120.000
3 locali 3 locali
100 Mq 100 Mq
1 bagno 1 bagno

Trilocale in vendita

Boltiere, Piazza Marconi

Descrizione annuncio

BOLTIERE:

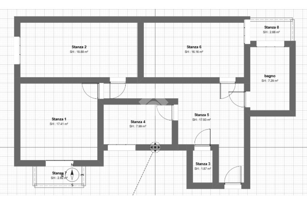
Proponiamo in vendita, in centro paese, appartamento trilocale, ideale per chi cerca spazi ben distribuiti e funzionalità.

L'immobile è stato recentemente ristrutturato, offrendo un ambiente moderno e accogliente.

La disposizione della zona giorno prevede una cucina separata, soggiorno con balcone con ampie finestre garantiscono una buona luminosità e un comodo ripostiglio.

La zona notte invece è composta da due camere, di cui una matrimoniale, e un bagno finestrato con box doccia con acesso sul secondo balcone.

Un'opportunità interessante per chi desidera vivere in un contesto tranquillo senza rinunciare alle comodità della vita urbana.

Mostra tutto

Nelle vicinanze

Trasporto pubblico Trasporto pubblico
Osio Sotto - Centro interscambio TBSO
Osio Sotto - Centro interscambio TBSO
920 m
Osio Sotto - TBSO lato supermercato GS
Osio Sotto - TBSO lato supermercato GS
1,0 Km
Ricariche auto elettriche Ricariche auto elettriche
LIDL Rio Isolo
770 m
Evbility Osio Sotto Campo Sportivo
2,5 Km
Scuole Scuole
Scuole
1,8 Km
Istituto comprensivo di Verdellino
2,1 Km
Scuola Secondaria Sandro Pertini
2,3 Km
Farmacia Farmacia
Farmacia
2,3 Km
Iper Farma
2,9 Km
Ospedali Ospedali
Policlinico San Marco
960 m
Istituto di Neuroriabilitazione ad Alta Complessità Habilita
2,2 Km
Supermercati Supermercati
Conad
650 m
Lidl
830 m
Carrefour Market
1,1 Km
MD
1,3 Km
La Coccinella
1,8 Km
Negozi Negozi
Mini Market
2,0 Km
Negozi
2,4 Km
Minimarket Chiara
2,8 Km
OVS
2,8 Km
Bar Bar
Bar
2,1 Km
Bar Giardino
2,1 Km
Ristoranti Ristoranti
Rosa Camuna
140 m
Ristorante al Cantinone
530 m
Da Sergio ristorante self service
900 m
Pizzeria spaghetteria Très Bien
1,4 Km
Ristoranti
1,4 Km
Mostra tutto

Caratteristiche

Rif.:
61120654
Piano:
1 di 3 (Piano basso)
Balconi:
1
Camere da letto:
2
Arredamento:
Assente
Condizionamento:
Assente
Mostra tutto
Prezzo Prezzo
€ 120.000
Rata mutuo Rata mutuo
€ 560 / mese
Spese annue Spese annue
€ 800
Proponi il tuo prezzoProponi il tuo prezzo
Immobile valutato con T·Valuta

Classe Energetica

G
G
G
G
G
G
G
G
G
EP invernale del fabbricato:
EP estiva del fabbricato:
Anno di costruzione:
1967
Riscaldamento:
Autonomo
Tipo impianto:
A radiatori
Tipo alimentazione:
Metano

Ti interessa visionare l'immobile?

Fissa un appuntamento  Fissa un appuntamento

Richiedi informazioni

Clicca su Leggi per aprire l'informativa
* Questi campi sono obbligatori

Calcola il tuo mutuo

Semplice e senza impegno
Anticipo

( % )
Mutuo

( % )

pochi semplici passi

inserisci i tuoi dati
Questionario completato
Grazie per aver richiesto un appuntamento senza impegno con un nostro Consulente del Credito e Assicurativo.

Hai inserito correttamente tutti i dati necessari e a breve riceverai una e-mail con un link da convalidare per inviare i tuoi dati.
Affiliato
Tecnoboltiere Srl
Via IV Novembre, 11 24040 Boltiere (BG)

Il nostro staff


  • Veronica Pizzardi
    Collaboratrice

  • Edoardo Rigamonti
    Affiliato

  • Gaia Stampa
    Collaboratrice
Via IV Novembre, 11 24040 Boltiere (BG)
Zona: Boltiere
Mostra su mappa
Affiliato
Tecnoboltiere Srl
Via IV Novembre, 11 24040 Boltiere (BG)

2026 Tecnocasa Franchising S.p.A. - P. IVA 08365160152 - Via Monte Bianco 60/A 20089 Rozzano (MI). Ogni agenzia ha un proprio titolare ed è autonoma. Privacy policy | Policy utilizzo | Cookie policy